BOSS 20' x 40' 800 Sqft Steel ADU | Modern Backyard Accessory Dwelling Unit | 2 Bedroom Core

PRODUCT DESCRIPTION

The BOSS 800 Sqft ADU is a premium, modern accessory dwelling unit designed to deliver maximum comfort, durability, and efficiency in a compact footprint. With a spacious 20 x 40’ layout and an overall height of 11’6”, this backyard-ready ADU is ideal for homeowners looking to add a stylish guest house, rental unit, home office, or independent living space. Built with precision-engineered light-gauge steel framing, the BOSS ADU offers exceptional structural strength, long-term performance, and low-maintenance construction. The exterior features a sleek painted galvanized steel roof available in corrugated or standing seam profiles, paired with weatherproof interlocking wall panels for superior protection in any climate.

Inside, the BOSS ADU comes with a thoughtfully designed standard interior package, including cabinetry, interior doors and hardware, finish flooring, paint, electrical and plumbing fixtures, and an efficient mini-split A/C system for year-round comfort. Large double-pane windows with black aluminum frames bring in abundant natural light, while door and window placements are fully customizable to match your design preferences. Built for energy efficiency, the unit includes 4” PIR insulation with an impressive R-28 roof rating and R-42 wall rating, helping reduce heating and cooling costs. Safety is also a top priority, featuring FM-approved Class 1 fire-rated materials and self-extinguishing insulation. Fully compliant with International and California Building Codes, eco-friendly with 35% recycled content, and backed by a 10-year structural warranty, the BOSS ADU is a smart, sustainable, and high-value solution for expanding your living space.

Price Does Not Include Installation or Permitting. 

  • 800 Sqft Modern Backyard ADU perfect for guest living, rental income, or a private home office
  • Spacious 20’ x 40’ Footprint with an overall height of 11’6” for an open, comfortable layout
  • Precision-Engineered Steel Framing using durable light-gauge steel for long-lasting structural strength
  • Premium Galvanized Steel Roof with corrugated or standing seam options for superior weather protection
  • Energy-Efficient PIR Insulation
    • Roof: R-28 with 4” insulation
    • Walls: R-42 with 4” insulation
  • Weatherproof Interlocking Wall Panels with steel studs for maximum durability in any climate
  • Fire-Safe Construction featuring FM Approved Class 1 materials and self-extinguishing insulation
  • Modern Black Aluminum Windows & Doors with double-pane glass for natural light and efficiency
  • Customizable Window & Door Placement tailored to your design and layout preferences
  • Standard Interior Package Included
    • Interior doors & hardware
    • Cabinetry
    • Finish flooring
    • Paint
    • Electrical & plumbing fixtures
  • Mini-Split A/C System Included for year-round heating and cooling comfort
  • Meets International & California Building Codes for compliance and permitting confidence
  • Eco-Friendly Materials made with 35% recycled post-consumer content
  • Backed by a 10-Year Structural Warranty for long-term peace of mind

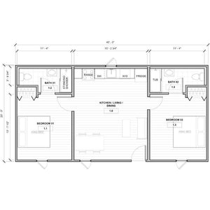
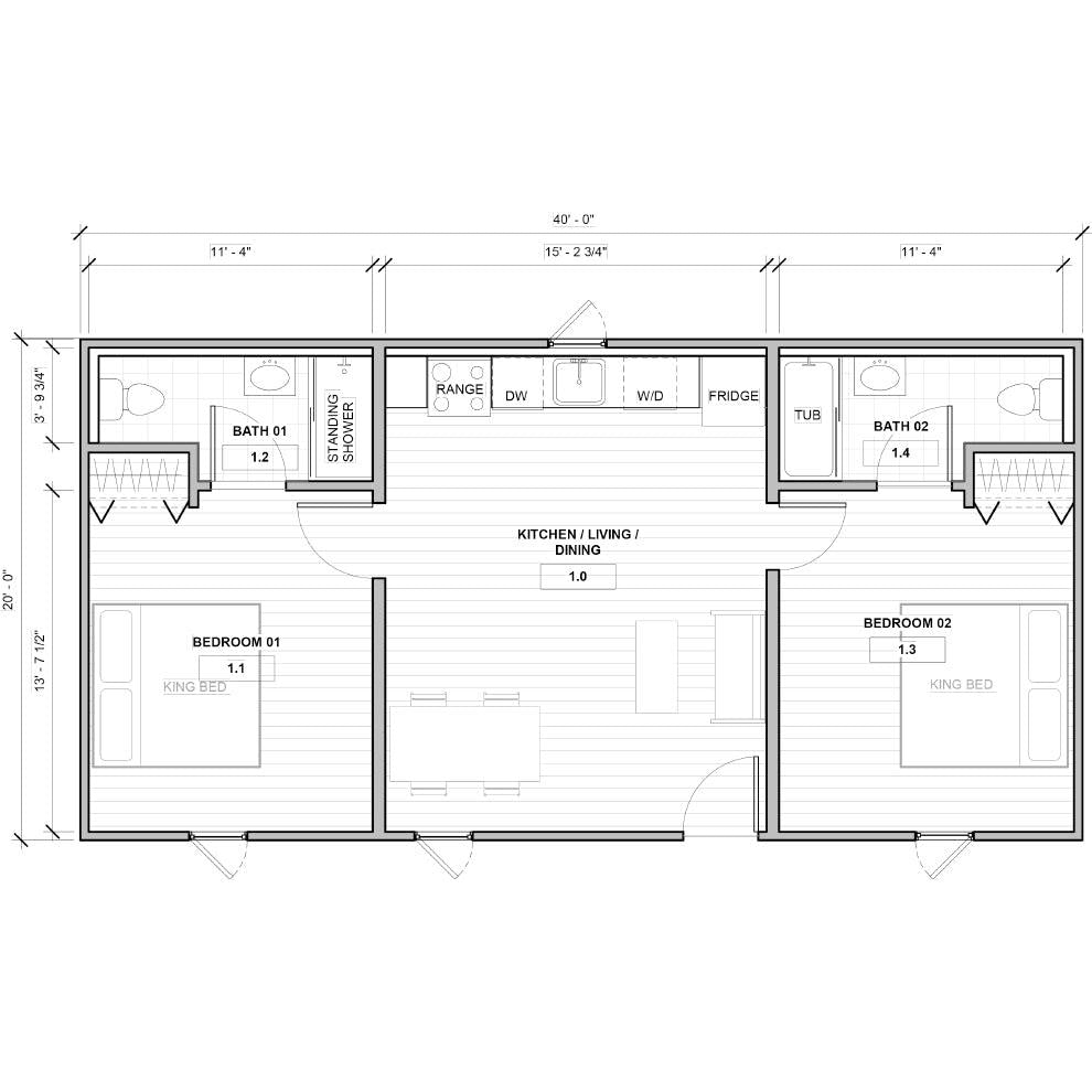
Square Footage: 800 Total Sqft

Unit Footprint: 20’ x 40’

Unit Height: 11’ – 6”

Exterior

Structure: Precision-engineered light-gauge steel framing.

Roof: Painted Galvanized Steel: Corrugated or standing seam profile.

Doors & Windows:

  • Material:
    • Black aluminum frame
    • Double-pane glass
  • Window Sizes:
    • Medium Window: 28″ x 42″
    • Large Window: 28″ x 64″
  • Door Size:
    • Entry Door: 36″ x 80″
    • Door & window locations are customizable based on the client’s preferences.

INTERIOR

Ceiling Height: 8′- 0″ – 10′- 6″

  • All interior specs included in BOSS Homes standard package.
  • Boss’ standard interior package includes, but is not limited to:
    • Interior doors & hardware
    • Cabinetry
    • A/C system (Mini split)
    • Electrical & plumbing fixtures
    • Finish flooring
    • Paint
    • Kitchen appliances excluded.
Sku: 20x40BedCore
In stock! Usually ships within 48 hours.
- +
Price
$150,695

Recommended for You